INGRID DE MATTEO
Appeler Email
Retour
Maison traditionnelle de 165 m² - Façade Sud Est.jpg

Maison traditionnelle de 165 m² à Montelimar

195 000 €
26200 Montelimar
Ref. 314343

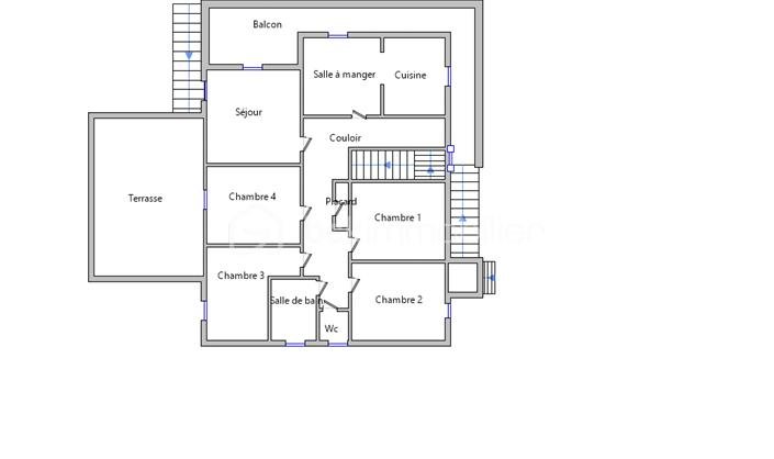
Grande maison des années 70 à rénover sur une parcelle de 448 m².
Avec 165 m² habitables et ses 5 chambres, elle offre un cadre de vie idéal pour réunir une grande famille ou créer plusieurs logements avec 2 entrées indépendantes. Chaque étage dispose d'un séjour, d'un espace cuisine, et d'une salle de bain.
Vous disposerez de places de stationnement sur la parcelle ainsi que d'un garage. Située dans une impasse, la maison jouit d'un agréable voisinage.
Travaux à prévoir : isolation, menuiseries, mode de chauffage (actuellement au fuel) et remise aux normes de l'électricité.
Cette annonce référence 314343 vous est présentée par votre agent commercial BSK Immobilier INGRID DE MATTEO (EI) immatriculé au RSAC de ROMANS-SUR-ISERE (26100) sous le numéro 90524857100010.

Prix du bien : 195 000,00 €
Les honoraires d'agence sont à la charge du vendeur.

A propos des performances énergétiques :
Date de réalisation du diagnostic énergétique : 26/11/2025
Score DPE : 294 kWhEP/m²/an
Score GES : 83 kgepCO2/m²/an
Montant estimé des dépenses annuelles d'énergie pour un usage standard : entre 5860.00 € et 8000.00 € par an. Prix moyens des énergies indexés sur l'année 2023 (abonnements compris).

Les informations sur les risques auxquels ce bien est exposé sont disponibles sur le site Géorisques : www.georisques.gouv.fr


  • 8 pièces
  • 165 m²
  • Exposition Sud-Ouest-Est
  • 5 chambres
  • Garage
  • Parking
  • Terrasse

294 kWhEP/m².an
F
83 kgepCO2/m².an
F

Prix : 195 000 €


  • Année de construction : 1971
Maison traditionnelle de 165 m² - Façade Sud Ouest.jpg Maison traditionnelle de 165 m² - Façade Nord Ouest.jpg
Maison traditionnelle de 165 m² - Façade Sud Est.jpg
INGRID DE MATTEO
INGRID DE MATTEO
Montélimar et agglomération, Drôme provençale, Sud Ardèche
12 biens en vente

Autres biens qui pourraient vous plaîre

  • CELINE PASCAL - lbs6D7zEAlfSujf6Lgnfe4
    26200 Montelimar
    • 8 806 m²
  • CELINE PASCAL - lbs6D7zEAlfSujf6Lgnfe4
    26200 Montelimar
    • 5 pièces
    • 105 m²
    • 4 chambres
    • 686 m² de terrain
  • CELINE PASCAL - lbs6D7zEAlfSujf6Lgnfe4
    26200 Montelimar
    • 4 pièces
    • 421,66 m²
    • 8 800 m² de terrain
  • MICKAËL GAUDISSARD - gaudissard_mickael
    26200 Montelimar
    • 4 pièces
    • 83 m²
    • 3 chambres
    • 100 m² de terrain