VALÉRIE CALMET
Appeler Email

Maison de maître de 300 m² à Nilvange

549 000 €
57240 Nilvange
Ref. 318161

Élégante maison de maître rénovée – Proche Thionville

Édifiée en 1903, cette charmante maison de maître mitoyenne d’un côté séduit par son architecture de caractère, ses volumes remarquables et son authenticité préservée.
Dès l’entrée, la hauteur sous plafond d’environ 3,50 mètres confère au lieu une atmosphère unique, associant espace, lumière et une magnifique vue dégagée.

Développant près de 600 m2 au sol, la propriété est implantée sur un terrain de 13,74 ares. Le jardin, sans vis-à-vis, exposé sud-ouest, bénéficie d’un excellent ensoleillement et offre la possibilité d’installer une piscine.

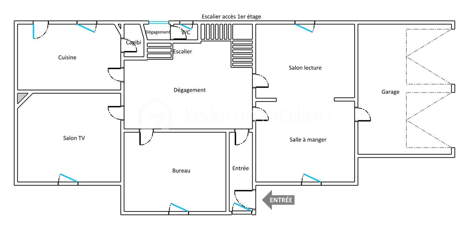
Le rez-de-chaussée, d’environ 133 m2 habitables, propose des espaces de vie généreux.
Une petite entrée mène à un vaste hall central desservant une salle à manger élégante, séparée du salon par une porte coulissante, permettant de moduler les volumes selon les usages.
La cuisine, indépendante, dispose d’un cellier et d’un accès direct à la terrasse et au jardin.
Un grand bureau, un salon TV équipé d’un poêle à bois ainsi qu’un WC complètent ce niveau.

À l’étage, environ 126 m2 habitables s’organisent autour d’un large palier desservant quatre chambres spacieuses, idéales pour une vie de famille confortable. Une salle de bain avec baignoire, double vasque, sèche-serviettes et fenêtre, ainsi qu’un WC séparé et des espaces de rangement, assurent un confort optimal. La configuration permet aisément la création d’une salle d’eau supplémentaire.

Les combles aménageables, d’une surface d’environ 138 m2 au sol, constituent un atout supplémentaire de cette propriété.
Ils se composent d’un hall central, de quatre pièces aux volumes généreux, ainsi que d’une pièce supplémentaire disposant d’une arrivée d’eau.
Cet espace offre un potentiel d’aménagement exceptionnel, permettant la création d’une suite parentale de standing, de chambres supplémentaires, de bureaux ou encore d’un espace loisirs haut de gamme, selon les projets et les envies.

Un sous-sol complet d’environ 140 m2 vient compléter l’ensemble.
Il comprend une buanderie, une chaufferie, une cave à vin, une salle de sport et une pièce supplémentaire bénéficiant d’un accès direct au jardin.

Les extérieurs proposent une terrasse d’environ 50 m2, un cabanon de jardin en dur, des places de stationnement et un double garage de 38 m2, pouvant accueillir deux véhicules, avec accès direct à la maison.

D’importants travaux ont été réalisés dans la propriété depuis 2001 : toiture refaite (pannes et tuiles), électricité entièrement reprise en triphasé, menuiseries en PVC double vitrage avec volets roulants, et système de chauffage performant associant pompe à chaleur air/eau, chaudière gaz en relais et poêle à bois, garantissant confort et souplesse d’utilisation.

Idéalement située à proximité immédiate de Thionville et des axes routiers, cette maison constitue une opportunité rare pour des frontaliers, une famille amoureuse des maisons de caractère, ou des acquéreurs souhaitant réaliser une résidence de standing.

A visiter sans tarder...
Cette annonce référence 318161 vous est présentée par votre agent commercial BSK Immobilier VALÉRIE CALMET (EI) immatriculé au RSAC de THIONVILLE (57100) sous le numéro 89803027500017.

Prix du bien : 549 000,00 €
Les honoraires d'agence sont à la charge du vendeur.

A propos des performances énergétiques :
Date de réalisation du diagnostic énergétique : 24/09/2025
Score DPE : 215 kWhEP/m²/an
Score GES : 20 kgepCO2/m²/an
Montant estimé des dépenses annuelles d'énergie pour un usage standard : entre 4170.00 € et 5710.00 € par an. Prix moyens des énergies indexés sur l'année 2023 (abonnements compris).

Les informations sur les risques auxquels ce bien est exposé sont disponibles sur le site Géorisques : www.georisques.gouv.fr


  • 8 pièces
  • 300 m²
  • Exposition Sud-Ouest
  • 4 chambres
  • Garage
  • Parking
  • Terrasse
  • Calme
  • Refait à neuf

215 kWhEP/m².an
D
20 kgepCO2/m².an
C

Prix : 549 000 €


Accédez à la visite

  • Année de construction : 1903
  • Cheminée
Maison de maître de 300 m² - Sejour.jpeg Maison de maître de 300 m² - Sam.jpeg
Maison de maître de 300 m² - Hall2.jpeg
VALÉRIE CALMET
VALÉRIE CALMET
Moselle et alentours
12 biens en vente

Autres biens qui pourraient vous plaîre

  • 57700 Hayange
    • 8 pièces
    • 180 m²
    • 4 chambres
  • PIERRE ETZEL - 240906103943_photo_en_situation_professionnelle
    57700 Hayange
    • 7 pièces
    • 112 m²
    • 3 chambres
  • SANDRINE RICHARD - 240702044947_photo_en_situation_professionnelle
    57650 Lommerange
    • 1 616 m²
  • 57100 Thionville
    • 4 pièces
    • 135 m²