SYLVIE LE GUEVEL
Appeler Email

Maison de 60 m² à Pezenas

40 000 €
34120 Pezenas
Ref. 317054

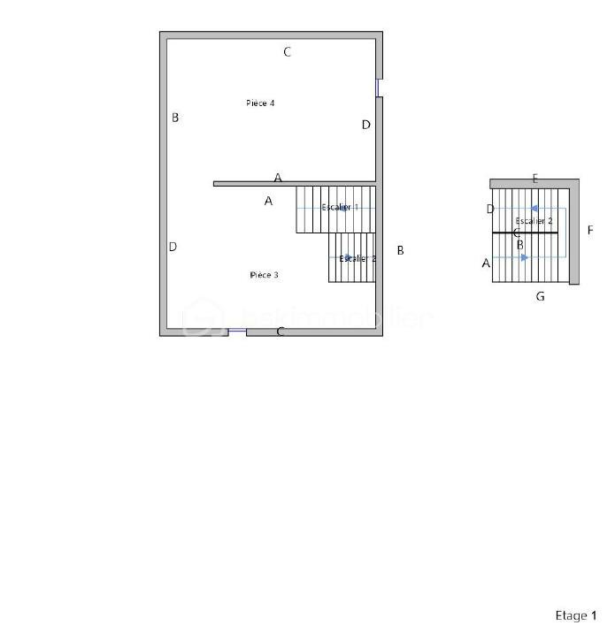
À trois kilomètres de Pézenas, dans le village de Castelnau-de-Guers, maison de village à rénover entièrement en R+2 de 60m2 environ.
Les plans sont annexés avec les photos.
DPE vierge car aucun mode de chauffage.
Pas de termites.
Toiture remaniée avec remplacement d'un velux il y a 4 ans.
Exposition sud-ouest.

N'hésitez pas à me contacter pour plus de renseignements.
Cette annonce référence 317054 vous est présentée par votre agent commercial BSK Immobilier SYLVIE LE GUEVEL (EI) immatriculé au RSAC de BEZIERS (34500) sous le numéro 40048323600032.

Prix du bien : 40 000,00 €
Les honoraires d'agence sont à la charge du vendeur.

DPE vierge.

Les informations sur les risques auxquels ce bien est exposé sont disponibles sur le site Géorisques : www.georisques.gouv.fr


  • 6 pièces
  • 60 m²
  • 3 chambres

VI
VI

Prix : 40 000 €


  • Année de construction : 1949
Maison de 60 m² - 8c2d4916-3b92-42a9-9502-55851e54cc44.jpg Maison de 60 m² - 78cb3cd0-94fa-4ced-a898-9892dbcb40c2.jpg
Maison de 60 m² - f4ef4c30-da0a-4c88-88e6-e1bec1b7db50.jpg
SYLVIE LE GUEVEL
SYLVIE LE GUEVEL
27 biens en vente

Autres biens qui pourraient vous plaîre

  • FERNANDO LOUREIRO DE BRITO - HKDaLRKnPtcq3l30GRaqGx
    34120 Pezenas
    • 8 pièces
    • 180 m²
    • 6 chambres
    • 470 m² de terrain
  • FERNANDO LOUREIRO DE BRITO - HKDaLRKnPtcq3l30GRaqGx
    34120 Pezenas
    • 4 pièces
    • 160 m²
    • 3 chambres
    • 1 970 m² de terrain
  • IRIS VAN OOSTEROM - van_oosterom_iris
    34120 Pezenas
    • 5 pièces
    • 140 m²
    • 4 chambres
    • 802 m² de terrain
  • MIREILLE VINCENT - b1srvGCXzfBcv5BHrvchgm
    34120 Pezenas
    • 9 pièces
    • 200 m²
    • 5 chambres