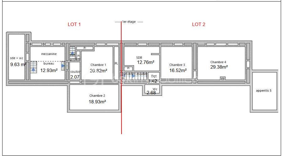
Ici présentation du Lot 1 :
Dans un environnement champêtre et paisible, venez découvrir ce bien rare à fort potentiel, issu de la division d’un ancien corps de ferme.
Située à Saint-Jean-des-Vignes, cette propriété se compose de deux lots mitoyens permettant de créer une maison familiale sur deux niveaux, avec un magnifique terrain de 1 250 m² env. offrant une vue dégagée et superbe sur la campagne environnante. (Terrain en zone Agricole - Non constructible)
Le bâtiment disposent également d'appentis et dépendances, idéals pour des espaces de rangement ou des projets d’aménagement futurs.
Potentiel agrandissement de la surface habitable.
Prévoir une rénovation complète : gros œuvre, menuiseries, gestion des eaux usées, chauffage, plomberie et électricité, etc.
Ce bien s’adresse donc à des amateurs de travaux ou à des professionnels à la recherche d’un projet à fort potentiel dans un cadre bucolique et recherché. (Pas de copropriété)
Environnement calme, à seulement quelques minutes des commodités et axes principaux : Accés A89 et Gare de Lozanne direction Lyon Part dieu.
Une belle opportunité de créer votre maison sur mesure, dans un cadre naturel et privilégié. À voir sans tarder !
Cette annonce référence 309235 vous est présentée par votre agent commercial BSK Immobilier CLARA LIVET (EI) immatriculé au RSAC de VILLEFRANCHE-SUR-SAONE (69400) sous le numéro 97892821600016.
Prix du bien : 350 000,00 €
Les honoraires d'agence sont à la charge du vendeur.
A propos des performances énergétiques :
Date de réalisation du diagnostic énergétique : 24/05/2025
Score DPE : 342 kWhEP/m²/an
Score GES : 54 kgepCO2/m²/an
Montant estimé des dépenses annuelles d'énergie pour un usage standard : entre 5520.00 € et 7530.00 € par an. Prix moyens des énergies indexés sur l'année 2023 (abonnements compris).
Les informations sur les risques auxquels ce bien est exposé sont disponibles sur le site Géorisques : www.georisques.gouv.fr