CLARA LIVET
Appeler Email
Retour
Corps de ferme de 122 m² - Lot 2 (2).jpg

Corps de ferme de 122 m² à Saint-Jean-Des-Vignes

360 000 €
69380 Saint-Jean-Des-Vignes
Ref. 309188

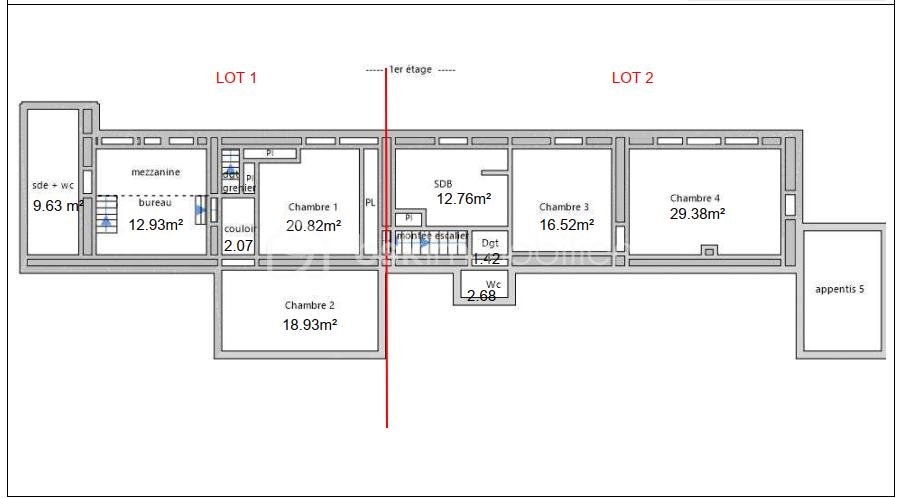
Ici présentation du Lot 2 :
Dans un environnement champêtre et paisible, venez découvrir ce bien rare à fort potentiel, issu de la division d’un ancien corps de ferme.
Située à Saint-Jean-des-Vignes, cette propriété se compose de deux lots mitoyens permettant de créer une maison familiale sur deux niveaux, avec un magnifique terrain de 1 250 m² offrant une vue dégagée et superbe sur la campagne environnante. (Parcelle situé en zone agricole - non constructible).

Le bâtiment disposent également d'appentis et dépendances, idéals pour des espaces de rangement ou des projets d’aménagement futurs.
Une déclaration préalable à été déposé et accepté pour créer un garage fermé d'env. 50m²

Prévoir une rénovation complète : gros œuvre, menuiseries, gestion des eaux usées, chauffage, plomberie et électricité, etc.
Ce bien s’adresse donc à des amateurs de travaux ou à des professionnels à la recherche d’un projet à fort potentiel dans un cadre bucolique et recherché. (Pas de copropriété)

Environnement calme, à seulement quelques minutes des commodités et axes principaux : Accés A89 et Gare de Lozanne direction Lyon Part dieu.

Une belle opportunité de créer votre maison sur mesure, dans un cadre naturel et privilégié. À voir sans tarder !
Cette annonce référence 309188 vous est présentée par votre agent commercial BSK Immobilier CLARA LIVET (EI) immatriculé au RSAC de VILLEFRANCHE-SUR-SAONE (69400) sous le numéro 97892821600016.

Prix du bien : 360 000,00 €
Les honoraires d'agence sont à la charge du vendeur.

A propos des performances énergétiques :
Date de réalisation du diagnostic énergétique : 24/05/2025
Score DPE : 342 kWhEP/m²/an
Score GES : 54 kgepCO2/m²/an
Montant estimé des dépenses annuelles d'énergie pour un usage standard : entre 5520.00 € et 7530.00 € par an. Prix moyens des énergies indexés sur l'année 2023 (abonnements compris).

Les informations sur les risques auxquels ce bien est exposé sont disponibles sur le site Géorisques : www.georisques.gouv.fr


  • 5 pièces
  • 122 m²
  • Exposition south-north-east
  • 2 chambres
  • Parking
  • Terrasse
  • Calme
  • Situé en campagne

342 kWhEP/m².an
F
54 kgepCO2/m².an
E

Prix : 360 000 €


  • Transport / Station
  • Cheminée
Corps de ferme de 122 m² - Lot 2.jpg Corps de ferme de 122 m² - Lot 2 (14).jpg
Corps de ferme de 122 m² - Lot 2 (2).jpg
CLARA LIVET
CLARA LIVET
13 biens en vente

Autres biens qui pourraient vous plaîre

  • CLARA LIVET - FawGKoSw62dPfE7x3aGgEk
    69380 Saint-Jean-Des-Vignes
    • 5 pièces
    • 113 m²
    • 2 chambres
    • 1 285 m² de terrain
  • ISABELLE CROST - PKvPJpEC7dYxpRGLK902QK
    69380 Belmont-D'azergues
    • 6 pièces
    • 147 m²
    • 4 chambres
    • 1 112 m² de terrain
  • ISABELLE GIROUD - 241206092121_photo_en_situation_professionnelle
    69380 Chazay-D'azergues
    • 3 pièces
    • 93,21 m²
    • 2 chambres
  • CLARA LIVET - FawGKoSw62dPfE7x3aGgEk
    69480 Morance
    • 7 pièces
    • 170 m²
    • 4 chambres
    • 3 000 m² de terrain